--   |  设为首页

帮忙装修网

中山

[切换]

全屋楼梯+储物楼梯 “家”的特质最大化表现

来自:中山帮忙装修网 日期:2019-08-27 15:34:18 13072 次 分享到:
导读:
本案例没有豪华的装饰,也没有繁琐的堆砌,所有家具几乎都是屋主一点点从宜家和某宝精挑细选的心爱之物。中山帮忙装修网装修公司分享。

音乐是血液里安静流淌的深邃,旅行是骨子里向往自由的野性。而孩子,是生命的延续,能让一个锐气潇洒的女王蜕变成温和包容的母亲。

本案的屋主不追求各式各样软装堆砌的华丽,也不追求彰显个性的风格化,在她看来,她想把“家”的特质最大化体现,让这个三层的宅子处处充满本真、爱和阳光,承载着回忆也可期未来。

由于屋主有个正值活泼成长期的6岁的小王子,对于儿童的活动区域、各类空间的储物能力,动线的流畅性和采光度要求很高,设计师在做空间规划的时候也考虑到这些需求,最大程度的满足了屋主的期许。

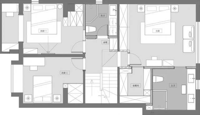
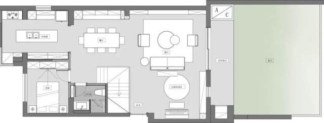
户型图

本案例没有豪华的装饰,也没有繁琐的堆砌,所有家具几乎都是屋主一点点从宜家和某宝精挑细选的心爱之物。

无论是爱犬的照片还是屋主之前世界各地旅游收藏的各类藏品,都是岁月的鉴证和回忆的点滴。用爱筑巢,用心生活。时光的馈赠和年华的美好都在阳光下慢慢铺成流淌着幸福的光影之路。

玄关

本案并未设计玄关,入户即是一整片的宽敞通透。设计师利用楼梯下方的空间打造了一整面的储物柜,一家人常用的鞋子和雨具都可以收纳其中,木质的柜门和楼梯材质浑然一体,好看又实用。

仿木纹的地砖做鱼骨拼接,通铺整个一层地面,简单的石膏吊顶简洁舒适,阳光透过白色纱窗从落地窗洒进房间,采光极佳。

客厅

一楼客厅的一半空间都是属于小王子的儿童活动区域,屋主心爱的雅马哈钢琴旁就是小王子的维尼熊和小黑板,黑板上小王子的画作充满童趣。

靠墙摆放的收纳组合把一些常用的玩具和杂物收得规整,靠墙的穿鞋凳实用大方。整个儿童活动区给人的感觉杂而不乱,容且温馨,屋主养的雪纳瑞狗狗也经常会安静地趴着陪伴小主人。

以北欧风的布艺沙发为界,另一半则是属于全家人的功能区。纯白色小圆几,圆几下的欧风地毯,以及两侧的休闲沙发椅无一不彰显着屋主追求自然、舒适、本真的生活状态。

落地窗边的乐谱架和沙发上入境的小提琴则是屋主多才多艺的另一个体现。

占据了客厅一整面墙的不规则木质书架组合里既有着着屋主的藏书,也有大量小王子的读物,各种手办、玩偶,电视机隐藏在两扇灰色推拉木门之后,而穿杂书柜与小几上随处可见的各种相框里一只可爱的雪纳瑞特别抓眼球,据了解,这只狗狗是陪伴了屋主十余年的心头宝,虽然已寿终正寝,但给屋主留下了无数美好的回忆,屋主将狗狗的照片摆在房间各个位置,仿佛它一直都在,永远守护在她身边。

暖灰、杏色、原木色,整个客厅的色调温暖又天然,布局随心自由,让人舒适放松,充满“人味儿”。

厨房

开放式厨房和餐厅之间仅以地板砖的拼接方式和色彩更迭做过渡和划分,纯白的橱柜储物柜配以黑色勾边,整面窗的采光性极佳,黄铜吊灯组合下是一个带双水槽的中岛台,整个厨房的动线流畅,空间布局大气,烹饪区在内里靠窗,远离餐厅,避免油烟烦恼。

餐厅

北欧风的餐桌椅组合,黄铜餐厅吊灯,继续延续着客厅配色的简洁和温暖,黑白原木三色的餐边柜则修饰了整个空间大量的白造成的单调。

设计师调整了原楼梯上楼的位置,从户型图上看,原本的位置浪费了一大块区域,动线不分明,而通过设计师的改变后,将空出来的区域“变”成了现在的餐厅。

卫生间

主卧的卫生间空间充足,推门进入,左侧靠窗白色台面的双台盆洗手池组,男女主人各有一块天地,彼此互不影响又能增进距离。下方则是黄铜拉手的白色柜组,储物能力强大。

卫生间干湿分离,干区地面任然是采用地砖做人字拼接,淋浴区垫高,使用白色防滑小方砖。淋浴间利用墙角做了壁龛,可摆放沐浴用品等方便使用。

吸水防滑毡上摆放了脏衣篓,靠近洗手池还有一张化妆凳,随处可见的雪纳瑞照片和墙角绿植点缀空间,生活气息浓厚。

一层客卫位于客卧和厨房之间,干湿分离,地面和洗手台墙面都用仿木瓷砖做不规则拼接,消除沉闷。

淋浴区和抽水马桶的墙面则使用简单的白色瓷砖,方便清洁。

客卫的设计以生活化和便捷使用为优先级,简约实用。

卧室

人字拼接的仿木地砖,浅灰色背景墙,为主卧定下基调,深灰+实木的北欧风双人大床和同色系的床上用品都给人静懿、安眠的舒适感。

蛋壳型丹妮卡茶几替代了传统床头柜,配色和弧度都增加了一分灵动,床尾地上的长毛地毯也为这个空间增添了一分慵懒和自由。

床边靠内墙的一侧是白色大衣柜,床的对面则是一套黑胡桃红橡木书柜和简约欧风的桌椅组。屋主心爱的雪纳瑞寿终正寝后屋主为它举办了葬礼,并将它的骨灰收敛后和它心爱的玩具一起珍藏在书柜上层,可以说真的是非常珍爱了。

书柜左右两边的门分别通往主卫和衣帽间,每扇门后都别有洞天,每个空间都彼此独立而互相呼应。

这间卧室是给小王子的外婆使用的,因此风格上以舒适、质朴为主。卧室自带阳台,设计师并没有给阳台做推拉门,而是让阳台空间并入整个卧室,仅用黑色给框架包边。

实木大床质朴又有品质,床对面的电视机柜组收纳空间充足。

进门口处,设计师利用承重墙的角度做了个隐藏的衣帽间,利用空间的同时也很好的弱化了承重墙的视觉影响。

一层客卧黄铜架的床和木质床头柜简约而不简单,床对面的组合柜集衣柜、电视机柜组于一体,空间安排恰当好处。

床头柜上的绿植和画框也为这个空间点缀了些许生活气息。

儿童房

小主人的房间则保留了飘窗,满足这个年龄阶段喜欢“上下求索”活泼好动的天性。由于大部分的玩具都在一楼儿童活动区域,小主人的房间显得干净整洁。

墙角的收纳组合让小主人从小就培养收拾整理的好习惯,和木质儿童床匹配的是糖果绿和木纹床头柜,活泼灵动。

设计师同样利用儿童房承重墙的角度做了和外婆房间一样的衣帽间,让空间的收纳功能更强大,更整洁。

走廊

拾阶而上,二楼空间有错层,踩着白色大理石面台阶可进入主卧。由于全屋使用的都是浅灰色环保木门,在装修风格上十分统一,一切以实用简约为主。推开木门,视野瞬间开阔。



中山装修公司哪家好?中山新房装修要找靠谱的装修公司就上中山帮忙装修网,免费获得三家本地优秀装修公司量房、设计、报价,对比之后再装修。点击免费发布装修招标。

长按二维码关注"帮忙装修网",了解更多装修资讯↓↓↓


或拨打免费热线:13822775923

已成功招标53521